小野租   >   深圳办公室出租   >   南山办公室出租   >   科技园办公室出租   >   科兴科学园   >   科兴科学园845.3㎡13+1朝东

科兴科学园845.3㎡13+1朝东

12.26 万元/月 单价:145元/m²/月

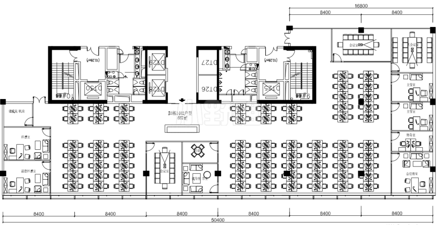
845.3m²

面积

80个-120个

参考工位

精装

装修风格
所在楼盘

科兴科学园

所在区域

南山 - 科技园

房源信息

基础信息
办公格局
13隔间1开间
参考工位
80个-120个
装修风格
精装
朝向
物业费
18.50元/m²/月
空调计费
按流量
空调类型
中央空调
空调开放
全天00:00-24:00
楼层位置
中层
押付方式
押2付1
最短租期
12个月
免租期
面议

所属楼盘 查看楼盘详情 >

楼盘名称

科兴科学园

类型

甲级写字楼

楼盘均价

-

在租户型

76个房源

竣工时间

2012年

地理位置

深圳市南山区科苑路15号

开发商

正中集团

物业公司

深圳市正中物业管理有限公司

车位数

2100个

停车费

600.00元/月

栋座

B栋

总楼层

18层

层高

3.8米

电梯

18部

入驻企业

腾讯

科兴科学园

猜你喜欢

+ 展开
免费咨询