小野租   >   深圳办公室出租   >   南山办公室出租   >   科技园办公室出租   >   讯美科技广场   >   精装修,采光通透,无遮挡,超高实用率!

精装修,采光通透,无遮挡,超高实用率!

4.34 万元/月 单价:140元/m²/月

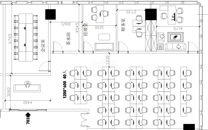
310m²

面积

40个-42个

参考工位

精装

装修风格
所在楼盘

讯美科技广场

所在区域

南山 - 科技园

带全套家私
电梯口
景观无敌
户型方正

房源信息

基础信息
办公格局
5隔间1开间
参考工位
40个-42个
装修风格
精装
朝向
西北
物业费
18.00元/m²/月
空调计费
按流量
空调类型
中央空调
空调开放
全天00:00-24:00
楼层位置
低层
押付方式
押2付1
最短租期
24个月
免租期
面议

所属楼盘 查看楼盘详情 >

楼盘名称

讯美科技广场

类型

甲级写字楼

楼盘均价

-

在租户型

59个房源

竣工时间

2015年

地理位置

深圳市南山区科华路8号

开发商

深圳市讯美科技有限公司

物业公司

深圳市中盈物业管理有限公司

车位数

1500个

停车费

600.00元/月

栋座

3号楼

总楼层

23层

层高

4.2米

电梯

客梯8部,货梯2部

入驻企业

-

讯美科技广场

猜你喜欢

+ 展开
免费咨询