小野租   >   深圳办公室出租   >   福田办公室出租   >   中心区办公室出租   >   卓越大厦   >   卓越大厦350平方6+1格局价可谈

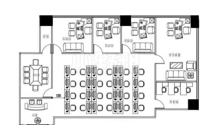
卓越大厦350平方6+1格局价可谈

5.18 万元/月 单价:148元/m²/月

350m²

面积

30个-35个

参考工位

豪装

装修风格
所在楼盘

卓越大厦

所在区域

福田 - 中心区

带全套家私

房源信息

基础信息
办公格局
6隔间1开间
参考工位
30个-35个
装修风格
豪装
朝向
物业费
14.65元/m²/月
空调计费
按流量
空调类型
中央空调
空调开放
工作日08:30-18:00
楼层位置
中层
押付方式
押2付1
最短租期
12个月
免租期
面议

所属楼盘 查看楼盘详情 >

楼盘名称

卓越大厦

类型

甲级写字楼

楼盘均价

-

在租户型

41个房源

竣工时间

2004年

地理位置

深圳市福田区福华一路98号

开发商

深圳市永润科技实业有限公司

物业公司

卓越物业

车位数

238个

停车费

900.00元/月

栋座

单栋

总楼层

22层

层高

2.7米

电梯

9

入驻企业

-

卓越大厦

猜你喜欢

+ 展开
免费咨询