小野租   >   深圳办公室出租   >   福田办公室出租   >   中心区办公室出租   >   荣超经贸中心   >   福田中心区经贸中心177平4+1格局

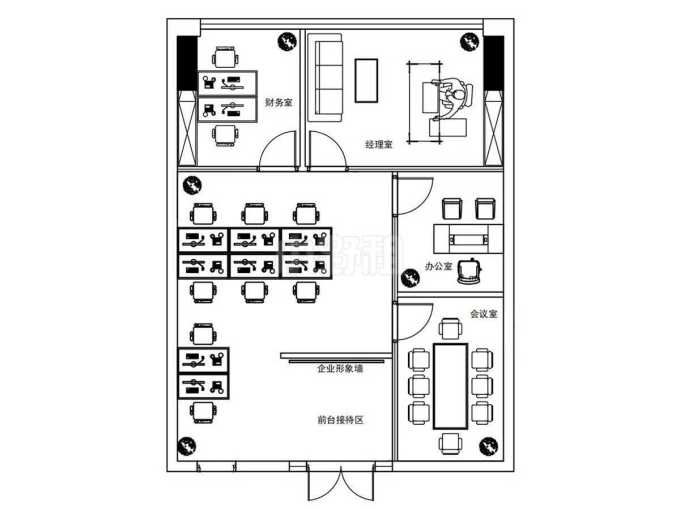
福田中心区经贸中心177平4+1格局

2.28 万元/月 单价:128.81元/m²/月

177m²

面积

6个-8个

参考工位

精装

装修风格
所在楼盘

荣超经贸中心

所在区域

福田 - 中心区

景观无敌

房源信息

基础信息
办公格局
4隔间1开间
参考工位
6个-8个
装修风格
精装
朝向
西
物业费
18.65元/m²/月
空调计费
按流量
空调类型
中央空调
空调开放
全天00:00-24:00
楼层位置
中层
押付方式
押2付1
最短租期
12个月
免租期
面议

所属楼盘 查看楼盘详情 >

楼盘名称

荣超经贸中心

类型

甲级写字楼

楼盘均价

-

在租户型

35个房源

竣工时间

2007年

地理位置

深圳市福田区金田路4028号

开发商

深圳市荣超房地产开发有限公司

物业公司

荣超物业

车位数

560个

停车费

1000.00元/月

栋座

单栋

总楼层

48层

层高

3米

电梯

17

入驻企业

-

荣超经贸中心

猜你喜欢

+ 展开
免费咨询